★高速低扭矩膜盤聯軸器,重量更輕,附加彎矩更小,高轉速動態性能好;
★中間膜盤組件整體組裝出廠,安裝方便,動平衡特性高,是各流程動力設備的首要選擇;
★角向補償0.25°,可滿足一般設備的要求;驅動螺栓采用高強度合金鋼,頭部采用12角頭法蘭面螺栓,螺栓強度和壽命高。

主要尺寸和性能技術數據表
|
型號 |
公稱扭矩 (kNm) |
峰值扭矩 (kNm) |
特大許用轉速 |
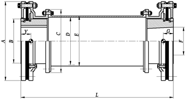
A
(mm) |
B
(mm) |
C
(mm) |
D
(mm) |
E
(mm) |
F
(mm) |
L 標準值(mm) |
|
TARM150 |
5.2 |
7.52 |
32000 |
150 |
82 |
127 |
88 |
93 |
57 |
580 |
|
TARM180 |
8.8 |
13.11 |
25000 |
180 |
97 |
150 |
112 |
117 |
63 |
610 |
|
TARM230 |
18.8 |
28.6 |
20000 |
230 |
122 |
175 |
130 |
136 |
82 |
640 |
|
TARM280 |
32.3 |
48.9 |
18000 |
280 |
152 |
227 |
172 |
180 |
100 |
700 |
|
TARM330 |
60.2 |
88.7 |
15000 |
330 |
185 |
277 |
203 |
214 |
115 |
720 |
|
TARM380 |
85.5 |
127.61 |
12000 |
380 |
206 |
306 |
232 |
245 |
140 |
760 |
|
TARM430 |
136.3 |
204.6 |
10000 |
430 |
248 |
350 |
270 |
285 |
165 |
860 |
|
TARM560 |
435.4 |
1018.2 |
6000 |
560 |
340 |
505 |
304.8 |
340 |
228 |
600 |
|
型號 |
擰緊力矩(Nm) |
總質量 (Kg) |
扭轉剛度KT |
轉動慣量 (Kgm^2) |
中間節每米長 |
角向不對中 |
軸向不對中 |
||||
|
質量 (Kg) |
扭轉剛度 ΔKT(Nm /radxE+06) |
轉動慣量 (Kgm^2) |
特大 θmax (deg) |
角向剛度Kθ
|
特大(mm) |
軸向力 (N) |
|||||
|
TARM150 |
15 |
12.36 |
0.17 |
0.018 |
5.3 |
115.82 |
0.0115 |
0.25o |
0.62 |
1.35 |
426.1 |
|
TARM180 |
30 |
18.7 |
0.32 |
0.038 |
7.2 |
213.32 |
0.023 |
0.25o |
1.51 |
2 |
813.7 |
|
TARM230 |
45 |
36.04 |
0.73 |
0.113 |
12.8 |
532.25 |
0.058 |
0.25o |
3.11 |
2.5 |
1398.2 |
|
TARM280 |
120 |
62.4 |
1.64 |
0.303 |
18.5 |
1456.11 |
0.138 |
0.25o |
8.35 |
3 |
2336.3 |
|
TARM330 |
120 |
104.1 |
3.17 |
0.705 |
30.2 |
3273.3 |
0.325 |
0.25o |
13.34 |
3.5 |
3249.5 |
|
TARM380 |
160 |
143.8 |
5.21 |
1.289 |
39.5 |
5866.7 |
0.514 |
0.25o |
17.12 |
3.5 |
3997.8 |
|
TARM430 |
160 |
226.9 |
8.09 |
1.536 |
55.35 |
10265.2 |
1.039 |
0.25o |
28.79 |
3.5 |
6492.5 |
|
TARM560 |
220 |
589.2 |
26.9 |
11.45 |
143.2 |
37652.9 |
3.63 |
0.25o |
66.3 |
3.5 |
11245.4 |
◆聯軸器長度L是根據使用性能建議的標準值,可按用戶要求設計。其它尺寸的L值,其扭轉剛度、轉動慣量等應另算;
◆徑向不對中數值是角向不對中和中間節長度的函數,可近似按正切函數推倒;
◆對于有熱膨脹的機組,安裝時應考慮冷態預拉伸量,使撓性元件工作在較小的變形區間,提高使用壽命;
◆有_疑問和其它需求,歡迎向天碩銷售工程師咨詢。