★適用于更大的軸位移和更小的剛度要求的膜盤聯軸器。如軸間距小,建議選用TARS系列
★中間膜盤組件整體組裝出廠,安裝方便,動平衡特性高,是各流程動力設備的首要選擇;
★角向補償0.25°,可滿足一般設備的要求;驅動螺栓采用高強度合金鋼,頭部采用12角頭法蘭面螺栓,螺栓強度和壽命高。

主要尺寸和性能技術數據表
|
型號 |
公稱扭矩 (kNm) |
峰值扭矩 (kNm) |
特大許用轉速 |
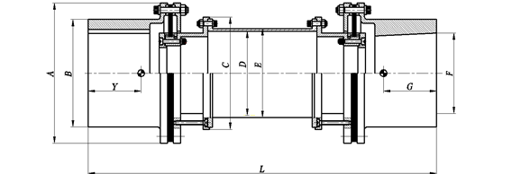
A
(mm) |
B
(mm) |
C
(mm) |
D
(mm) |
E
(mm) |
F
(mm) |
L 標準值(mm) |
|
TAHP150 |
3.5 |
7.5 |
32000 |
150 |
115 |
100 |
62 |
68 |
50 |
580 |
|
TAHP180 |
7.3 |
12.3 |
25000 |
180 |
140 |
125 |
74 |
82 |
63 |
610 |
|
TAHP230 |
18 |
28.3 |
20000 |
230 |
185 |
145 |
87 |
101 |
89 |
670 |
|
TAHP280 |
34.5 |
51.8 |
18000 |
280 |
215 |
190 |
127 |
139 |
101 |
700 |
|
TAHP330 |
56.5 |
89.6 |
15000 |
330 |
270 |
210 |
138 |
155 |
127 |
765 |
|
TAHP380 |
89.6 |
135.8 |
12000 |
380 |
307 |
235 |
158 |
176 |
139 |
765 |
|
TAHP430 |
125.3 |
211.7 |
10000 |
430 |
355 |
285 |
179 |
198 |
152 |
825 |
|
TAHP560 |
385 |
875.9 |
6000 |
560 |
480 |
360 |
236 |
268 |
228 |
1050 |
|
型號 |
擰緊力矩(Nm) |
總質量 (Kg) |
扭轉剛度KT |
轉動慣量 (Kgm^2) |
中間節每米長 |
角向不對中 |
軸向不對中 |
||||
|
質量 (Kg) |
扭轉剛度 ΔKT(Nm /radxE+06) |
轉動慣量 (Kgm^2) |
特大 θmax (deg) |
角向剛度Kθ (Nm/radxE+03) |
特大(mm) |
軸向力 (N) |
|||||
|
TAHP150 |
15 |
14.34 |
0.09 |
0.009 |
5.3 |
55.89 |
0.0058 |
0.25o |
0.65 |
1.5 |
491.1 |
|
TAHP180 |
30 |
21.8 |
0.209 |
0.021 |
7.2 |
121.76 |
0.0115 |
0.25o |
1.37 |
2.5 |
785.64 |
|
TAHP230 |
45 |
51.5 |
0.64 |
0.048 |
16.07 |
383.22 |
0.0356 |
0.25o |
3.39 |
3 |
1498.2 |
|
TAHP280 |
120 |
81.5 |
1.43 |
0.125 |
21.5 |
957.97 |
0.0921 |
0.25o |
7.86 |
3.5 |
2514.3 |
|
TAHP330 |
120 |
134.2 |
2.65 |
0.28 |
32.2 |
1773.38 |
0.1718 |
0.25o |
14.88 |
4 |
3616.5 |
|
TAHP380 |
160 |
176.1 |
3.93 |
053 |
35.6 |
2623.83 |
0.2516 |
0.25o |
18.25 |
4 |
4177.7 |
|
TAHP430 |
160 |
245.5 |
5.92 |
0.93 |
45.6 |
4175.75 |
0.3909 |
0.25o |
28.13 |
4 |
7258.9 |
|
TAHP560 |
220 |
670.7 |
19.17 |
4.67 |
98.1 |
5653.5 |
1.568 |
0.25o |
75.11 |
4 |
11834 |
◆聯軸器長度L是根據使用性能具有的標準值,可按用戶要求設計。其它尺寸的L值,其扭轉剛度、轉動慣量等應另算;
◆徑向不對中數值是角向不對中和中間節長度的函數,可近似按正切函數推倒;
◆對于有熱膨脹的機組,安裝時應考慮冷態預拉伸量,使撓性元件工作在較小的變形區間,提高使用壽命;
◆有_疑問和其它需求,歡迎向天碩銷售工程師咨詢。